[考研经验] 24山东大学考点考前须知!(附考场安排!)

[复制链接]
查看1139 | 回复0 | 2023-12-22 17:24:36 | 显示全部楼层 |阅读模式
本帖最后由 山大考研 于 2023-12-22 17:24 编辑

2024年全国硕士研究生招生考试(初试)将于12月23日—25日进行,为确保广大考生顺利应考,小编特意准备这份“考前须知”赶快来查收!
一、考前准备
1、所有考生须凭网报用户名和密码登录中国研究生招生信息网下载打印《准考证》。《准考证》使用A4纸打印,正、反面在使用期间不得涂改或书写。考前请仔细阅读《国家教育考试违规处理办法》和《准考证》上的“报考点说明”、“招生单位说明”、“考生须知”等内容。
2、考生务必携带《准考证》、二代居民身份证参加考试。
3、出发前请认真清点考试所需携带的物品:有效居民身份证、准考证、黑色字迹签字笔、2B铅笔、橡皮、绘图仪器及准考证上注明所需携带的用具。建议使用透明文具袋将所有物品集中存放。
4、因学校校门与考场所在楼宇均有一定距离,请考生预留充足时间入场,建议考试当天至少提前1小时到达考试所在校区,考生到达考点后不得在考点周围逗留、聚集,应尽快有序入场。
5、考生到达校区后,在指定入口凭身份证、准考证,按规定路线到达考场所在楼宇,在楼宇前和考场入口进行两次人工安检和一次智能安检,并进行人脸识别检查。智能安检系统将对手机、照相机等金属类电子设备进行检测,请考生尽量不要携带钥匙、磁卡、打火机以及金属手镯、戒指、项链等物品,尽量不穿戴有金属装饰品的衣服、鞋帽、发卡等,避免反复安检,影响正常入场。
更多详细内容可以点击下方链接查看:

2024年全国硕士研究生招生考试(初试) 山东大学考点温馨提示
2024年硕士研究生招生考试(初试)山东大学考点温馨提示(二)
二、考场安排
各位山东大学考点考生:
准考证上已注明考生考试所在校区及楼宇,请考生提前确定住宿、交通等事宜。
山东大学各校区具体地址为:
中心校区:济南市山大南路27号
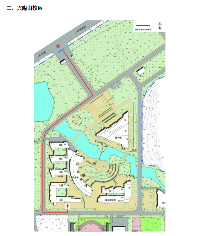
兴隆山校区:济南市二环东路12550号
软件园校区:济南市舜华路1500号
每场考试的考场(教室)均可能会在考点楼宇内发生变化,请仔细查看《准考证》上的考场信息,避免因走错考场耽误考试。
12月22日考生可凭准考证进校区查看考场。考试期间,考场区域及考场所在楼宇将实行封闭管理。每个校区指定一个校门供考生进出,请考生按规定路线进入考场所在楼宇,具体见山东大学各校区进出学校与考场示意图。
微信图片_20231222153423.png 微信图片_20231222153419.png 微信图片_20231222153414.png
注意:因济南轨道交通施工,中心校区山大南路(山大路至闵子骞西路段)机动车道封闭,考生可通过北侧人行道进入考区。
更多详细内容可以点击链接查看:
2024年全国硕士研究生招生考试(初试)山东大学考点考试校区安排
三、答题说明
所有考试科目,涂卡部分必须使用2B铅笔,填写部分必须使用黑色字迹签字笔(不得使用蓝色字迹或者钢笔),请各位考生注意条形码的粘贴。
【官方通知】山东大学2024年硕士研究生招生考试自命题科目条形码粘贴说明
凡因不正确填写(涂)个人信息、不按规定粘贴条形码、不按题号顺序作答、未答在答题卡(纸)规定区域等而影响评卷结果的,责任由考生自负。四、诚信考试要求
考生应严格遵守《考场规则》,端正考风,严肃考纪,诚信考试,杜绝作弊。
回复

使用道具 举报

您需要登录后才可以回帖 登录 | 立即注册

本版积分规则